シン・住まうためのイエ
今回はかなり変化したイエとなっていますが、今後ウチのスタンダードとしてさせてもらったところが数多くあるので数回に分けて説明していきます。
【永く安全にすまうため〜安全持続性能〜】
永く住まうという事は変化が生じるという事。時間により家族構成や身体的にも変化します。更には生活様式(ライフスタイル)も変化します。20年前にはお掃除ロボットがこう言った形状で一般的になるとは思っていなかったですし、もうすぐプロジェクターが一般的になっていくと思われます。今後どんな風になるかはわかりませんが、安全という部分においては認知されている部分があるので取り入れています。
以前にも『世代かんけいなく安心・安全に住みつづけられるイエ』でも書いている安全持続性能。今回はこのイエにおいて基準を意識した点について。
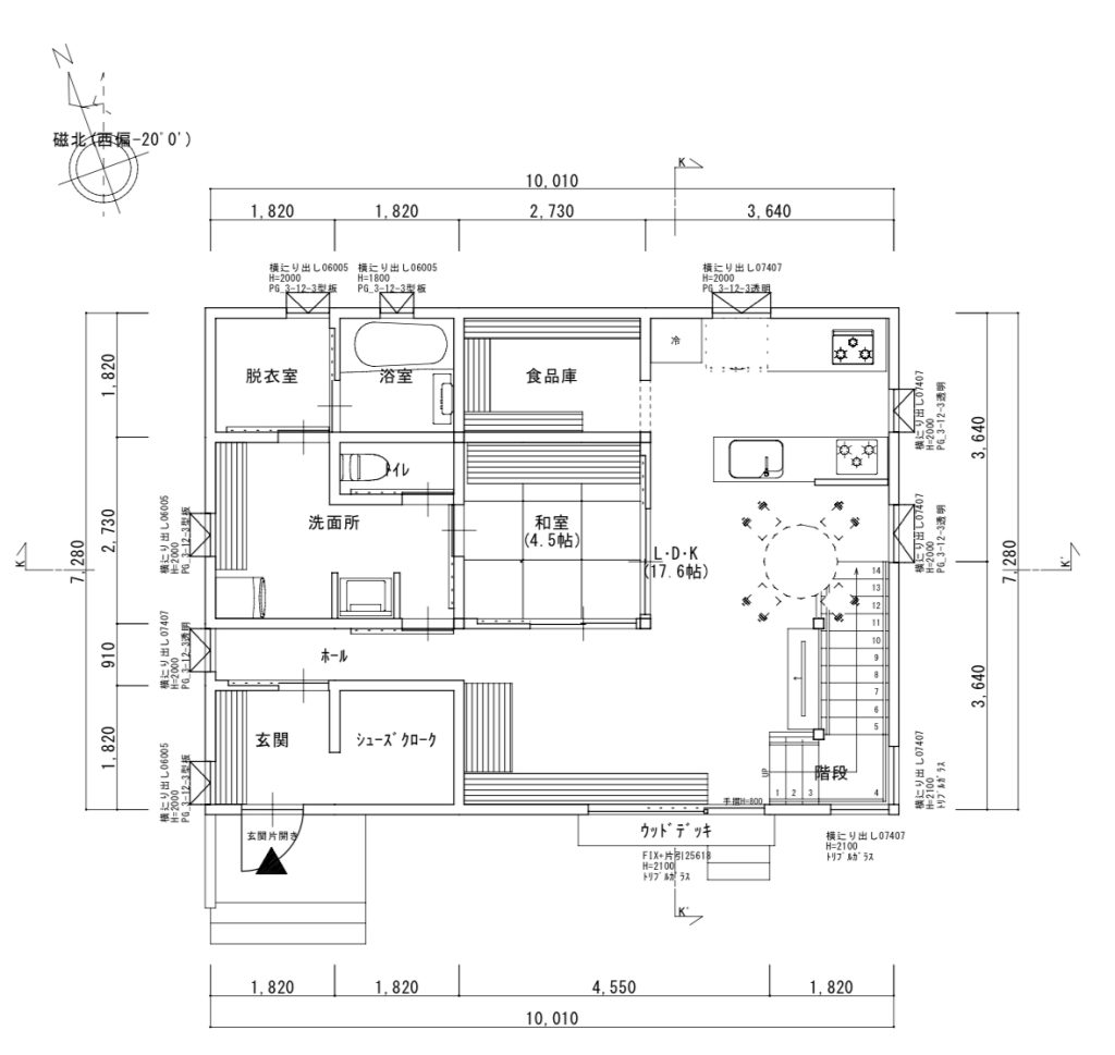
まずは階段。高さと踏み板の幅が規定されているので、必要な面接が決まるのでまず階段の位置が大切です。階段は動線と空気の動きに多大なる影響があります。僕は設計のキモとなる部分として居間>玄関>階段>トイレだと考えています。これらとパブリックスペースとプライベートスペース(スペースよりも見せる、見せないかも)の区分けをして開口部との兼ね合いでその他の区割りをするという感じです。だから結構スペースとしてとるうえにパターンも色々とあるので難しい。が、安全性を考えていくと少し制限がかかる。しかし制限がある方が決めやすい。理由がシッカリあれば尚更。

今回は意識して計画したのがユーティリティルーム。居間にくっついて和室を設けました。この和室の使い方をフェーズによって色々と提案させてもらいました。今は子供が生まれたばかりなので、寝かしつけスペースとして。また親御さんの泊まるゲストスペースとして。少し大きくなってきたら子供の遊ぶ場であり、お昼寝の場。もしも子供が多くなって部屋が必要となればウォークスルークローゼットとして。ゆくゆくは自分達の寝室とする事も可能です。
可変性という部分をかなり意識したユーティリティルーム。永く安全に住まう事を想定して計画したイエ。
「今」よりも20年後に建てて良かったと言ってもらうように計画しています。
一緒にイエづくりしませんか?